+7 (4852) 33-00-28, 35-85-16   com@tmtrade.ru   WhatsApp/Telegram/eXpress: +7 910-973-00-28

ТЯЖМАШТРЕЙД

энергетика инноваций

Особенности перевозки блочных КТП и КРУН

В представленных материалах на систематической основе рассматриваются требования, которые должны принимать во внимание изготовители электротехнического оборудования промышленного назначения.

Производителям, работающим на рынке промышленного оборудования в блочно-модульном исполнении в своей работе приходится учитывать многочисленные требования:

  • требования заказчика/проектировщика,
  • требования нормативных документов (ПУЭ, ГОСТ, ОСТ и др.),
  • требования грузоперевозчиков.

Часто эти требования являются взаимоисключающими, что добавляет головной боли поризводителям оборудования.

В этом материале рассмотрим требования грузоперевозчиков.

Перевозка железнодорожным транспортом

Габариты для перевозки РЖДНа первом рисунке изображена так называемая ЖД-рамка. Это максимальные габариты груза, который возможно отгрузить по железной дороге.

Для отгрузки оборудования по железной дороге требуется схема отгрузки, согласованная со железнодорожными службами. Стоимость данного документа, в среднем, 20 000 руб.

Кроме того, необходимо иметь специалиста, который сдал экзамены на ЖД и может осуществлять погрузку. Он же проводит оформление документов на груз и обеспечивает сдачу груза представителям железной дороги.

Ну и наконец, нужны три-четыре крепких парня, которые будут вязать проволоку (обязательно отожженную) на платформе.

При отгрузках мы используем универсальные платформамы 13,6 м и 18 м, а так же полувагоны. Проиллюстрируем отгрузку по железной дороге фотографиями.

 Транспортировка КТП
Фото 1
Перевозка блок-боксов по ЖД
Фото 2
 Погрузка КРУН на платформу
Фото 3

На Фото 1 показаны три блока 3х3 м КТП (утепленной сэндвич-панелями), на универсальной платформе, на Фото 2 - пять блоков 3х3 м на 18-метровой универсальной платформе. Отгрузка на 18-метровой платформе позволяет существенно уменьшить транспортные затраты, так как в противном случае потребовалось бы уже две 13-метровые платформы.

Фото 3 - спарка из двух универсальных платформ с установленными на них 13,5 м блоками. Это максимально возможный габарит груза, который можно отгрузить по железной дороге на универсальных платформах.

 Перевозка универсальными платформами
Фото 4
 Отгрузка полувагоном
Фото 5
 Отгрузка полувагоном
Фото 6

Фото 4 - пример еще одной спарки. На 18-метровой платформе два блока 3х9 м и на универсальной платформе блок 3х6 м и контейнер с ЗИП.

Фото 5 и 6 - отгрузка полувагоном. В этом случае не требуется схема отгрузки, но полувагоном отгрузить можно только блоки шириной до 2,5 м. Сама погрузка и увязка груза в полувагон проще.

Перевозка негабаритных грузов
Фото 7
Перевозка негабаритных грузов
Фото 8
Перевозка автомобильным транспортом
Фото 9

Все, что выходит за пределы ЖД-рамки переходит в категорию "негабаритный груз" с разной степенью негабаритности. Фото 7 - негабарит второй степени, Фото 8 - негабарит третьей степени.

Отправка негабаритного груза обходится значительно дороже. К примеру, габаритный груз на универсальной платформе - 170 000 руб. с НДС, а негабаритный груз - 620 000 руб. с НДС. В этом случае заказчик счел более разумным отправить груз автомобильным транспортом. При этом доставка двумя автомашинами обошлась в 420 000 руб. с НДС.

Перевозка автомобильным транспортом

Тут мы естественным образом переходим к отгрузке комплектных трансформаторных подстанций и распределительных устройств автомобильным транспортом. Фото 9 - отправка двух блоков 3х9 м низкорамными полуприцепами.

Появление на рынке большого числа автоперевозчиков позволило перейти на отгрузку автомобильным транспортом даже в достаточно удаленные регионы. Во-первых, доставка автотранспортом быстрее. Во-вторых, доставка автотранспортом осуществляется непосредственно "до места", а не до ближайшей железнодорожной станции, которая может находиться в нескольких сотнях километров от объекта. В-третьих, доставка автомобильным транспортом дешевле.

На сегодняшний день автомобильный транспорт - основной перевозчик. По железной дороге оборудование отгружается только в регионы, где нт прямого автомобильного сообщения - Приморье, Сахалин, Республика Коми.

Перевозка КТП автомобильным транспортом
Фото 10
Перевозка КРУН автотранспортом
Фото 11
Доставка 2КТП и КРУН
Фото 12

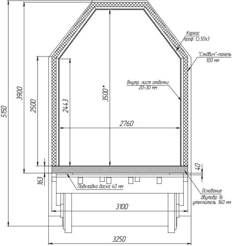
Максимальные габариты блочных комплектных трансформаторных подстанций (КТП) и комплектных распределительных устройств (КРУН) для перевозки автомобильным транспортом: ширина - 2,4 м, высота - 4 м от полотна дороги. 

Перевозка негабаритных грузов:

  • Ширина 2,4-3,49 м - требуется оформление разрешения на перевозку и автомобиль с желтым проблесковым маячком
  • Ширина 3,5-3,99 м - требуется оформление разрешения на перевозку и автомобиль с желтым проблесковым маячком и автомобиль сопровождения с желтым проблесковым маячком
  • Ширина 4-4,49 м - требуется сопровожение автомобилем ГИБДД.

Высота груза ограничена высотой мостов. Она, как правило, 4,5 м. Учитывая, что высота низкорамного полуприцепа 0,8 м, получаем высоту устанавливаемого на него груза 3,7 м.

Коротко о главном

При подключении предприятий и организаций к сетям электроснабжения электросетевые компании выдают технические условия на подключение, в которых обязательно прописывают защиту линии от перегрузок.

В качестве устройства защиты обычно предлагается предохранитель-разъединитель выхлопного типа ПРВТ или реклоузер (пункт секционирования столбовой) ПСС.

Что выбрать? Какое устройство больше подходит конечному потребителю?

Свяжитесь с нами

Круглосуточно, без выходных

 +7 (4852) 33-00-28

 +7 910‑973‑00‑28

 com@tmtrade.ru

TelegramWhatsapp Viber VK

QR-код

Тяжмаштрейд в странах и регионах: Анадырь, Петропавловск-Камчатский, Южно-Сахалинск, Владивосток, Хабаровск, Якутск, Иркутск, Красноярск, Новокузнецк, Тюмень, Сургут, Новый Уренгой, Пермь, Екатеринбург, Челябинск, Оренбург, Самара, Воркута, Сыктывкар, Архангельск, Санкт-Петербург, Калининград, Ростов-на-Дону, Краснодар, Волгоград, Симферополь, Ереван, Минск, Астана, Актобе, Алматы, Атырау, Усть-Каменогорск, Бишкек, Улан-Батор

Политика конфиденциальности

 

© Тяжмаштрейд 2011-2025

Яндекс.Метрика

ОСТАВАЙТЕСЬ ВСЕГДА НА СВЯЗИ!

При неполадках мобильной связи или Интернета звоните по постоянно доступному номеру телефона

+7 (4852) 35-85-16